Preload

Object name:
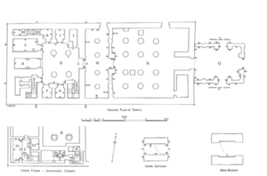
Temple of Hibis

Address:
Egypt

Added by:
Jose Black

Object description

The Temple of Hibis is the largest and best preserved ancient Egyptian temple in the Kharga Oasis, as well as the only structure in Egypt dating to the Saite-Persian period which has come down to modern times in relatively good condition. Located about 2 km north of Kharga, it was devoted to a syncretism of two local forms of the deity Amun: "Amun of Hibis" and "Amun-Ra of Karnak who dwells in Hibis".

Temple of Hibis
Temple of Hibis
Temple of Hibis

We use cookies

We use cookies and other tracking technologies to improve your browsing experience on our website, to show you personalized content and targeted ads, to analyze our website traffic, and to understand where our visitors are coming from. Privacy Policy.

EG Calendar country flag

Want to Add a Note, or Share your Calendar?

Please Login or Sign Up
gotop gotop